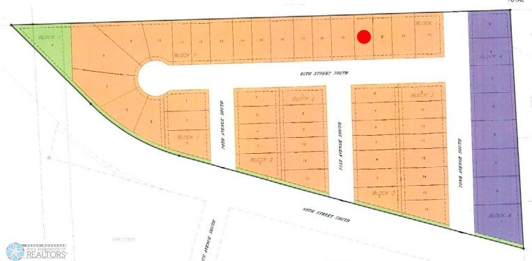
7108 65 Street S, Horace, ND

$46,090

Previous Next

0.15

Acres

About 7108 65 Street S

56 Lots to choose from!

Features of 7108 65 Street S

MLS® # 6697227
Price $46,090
Bathrooms 0.00
Acres 0.15
Type Land
Status Active

Community Information

Address 7108 65 Street S
Subdivision Southdale Farms 6th Add
City Horace
County Cass
State ND
Zip Code 58047

Amenities

Is Waterfront No
Has Pool No

Interior

Fireplace No

School Information

District West Fargo

Additional Information

Days on Market 215
Zoning Residential-Single Family
Foreclosure No
Short Sale No

Listing Details

OfficeDakota Plains Realty

Listing Map

Request a Showing

Provide a valid email address.
When would you like to view this property?