6515 72 Avenue S, Horace, ND

$39,490

Previous Next

0.12

Acres

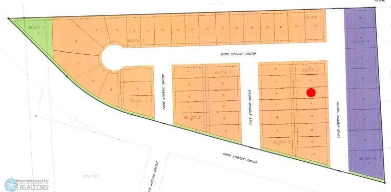
About 6515 72 Avenue S

56 lots to choose from

Features of 6515 72 Avenue S

MLS® # 6698013
Price $39,490
Bathrooms 0.00
Acres 0.12
Type Land
Status Active

Community Information

Address 6515 72 Avenue S
Subdivision Southdale Farms 6th Add
City Horace
County Cass
State ND
Zip Code 58047

Amenities

Is Waterfront No
Has Pool No

Interior

Fireplace No

School Information

District West Fargo

Additional Information

Days on Market 215
Zoning Residential-Single Family
Foreclosure No
Short Sale No

Listing Details

OfficeDakota Plains Realty

Listing Map

Request a Showing

Provide a valid email address.
When would you like to view this property?